GL Robinson Incorporated BBB Business Review

HALE OHANA Hale Ohana: The Ultimate 7BR/6BA Estate for Large Groups w/ 2 Hot Tubs!

7 Bedrooms • 6 Baths • Sleeps 16
Allows pets Internet Ocean View Mountain Downtown Hot Tub (more...)
In Hawaii, Ohana means family. It’s about creating a bond and a space where everyone belongs. Welcome to Hale Ohana, the ultimate destination for your next large group getaway. We created this unique estate by combining two beautiful, side-by-side townhomes—Hale Aloha and Hale Mahalo—to solve the single biggest challenge of multi-family travel: how to enjoy time together without sacrificing space and privacy. Imagine a family reunion where everyone has room to breathe. The kids can have their space while the adults relax on a separate lanai. Prepare a feast using two full kitchens, eliminating the "too many cooks" dilemma. At the end of the day, your group can soak in not one, but two private hot tubs, watching the Pacific sunset. Hale Ohana is more than just a large rental; it's a smart, luxurious solution designed to make your group vacation relaxing, memorable, and full of the true spirit of Ohana.

Aloha! I'm Glen Robinson, and on behalf of my family's company, Ocean View Oahu, we are delighted to host you. We have been a registered business (as GL Robinson INC) here in beautiful Hawaii since 2009 and are proud, accredited members of the Better Business Bureau (BBB) since 2013. My wife, Lara, and I met on the island in 2005 and are now raising our two Hawaii-born teenagers here, along with a lively household that includes two Boston Terriers, two very cute chinchillas, and some fish! Our mission is to provide a seamless, trustworthy, and unforgettable vacation experience in a home we care for deeply. We look forward to welcoming you!

96816, Hawaii

Property Type House
Accommodation Entire Home
Check-In Smart lock
House Rules
  • Maximum occupancy: 16
  • Children welcome
  • Infants welcome
  • Smoking not allowed
  • Wheelchair inaccessible
  • Minimum age of primary renter: 25
  • Other events allowed
  • Pets welcome
Setting & View
  • Water View
  • City
  • Mountain View
  • Beach
  • Ocean
  • Downtown
  • Beach View
  • Golf Course View
  • Mountain
  • Near Ocean
  • Ocean View
  • Rural
  • Town
  • Waterfront
  • Bay View
  • Garden View
  • Sea View
  • Valley View
  • City Skyline View
General
  • Internet
  • Air Conditioning
  • Central Heating
  • Linens Provided
  • Towels Provided
  • Washing Machine
  • Clothes Dryer
  • Hot Water
  • Private Living Room
  • Fitness Room/Equipment
  • Hair Dryer
  • Iron & Board
  • Safe
  • Wifi
  • Ceiling Fans
  • Laptop Friendly Workspace
  • Basic Soaps
  • Paper Towels
  • Shampoo
  • Toilet Paper
  • Hangers
  • Private Entrance
  • Lock On Bedroom Door
  • Extra Pillows & Blankets
  • Ethernet
  • Free Internet
  • Body Soap
  • Hair Conditioner
  • Bidet
  • Rain Shower
  • Shower Gel
  • Clothing Storage (closet or wardrobe)
  • Clothes Drying Rack
  • Mosquito Net
  • Portable Fans
Kitchen
  • Kitchen
  • Refrigerator
  • Stove
  • Oven
  • Microwave
  • Dishwasher
  • Dishes & Utensils
  • Spices/Pantry Items
  • Coffee Maker
  • Toaster
  • Ice Maker
  • Freezer
  • Blender
  • Kettle
  • Kitchenette
  • Pots & Pans
  • Kitchen Island
  • Dining Table
  • Baking Sheet
  • Barbeque/Grill Utensils
  • Bread Maker
  • Coffee
  • Mini Fridge
  • Rice Maker
  • Wine Glasses
Dining
  • Child's Highchair
  • Seating for 10 people
Bathrooms 6 Baths
  • Bathroom 1, Front House – Combination Tub/Shower, Jetted Tub, Shower, Toilet, Tub
  • Bathroom 2, Front House – Combination Tub/Shower, Shower, Toilet, Tub
  • Bathroom 3, Front House – Combination Tub/Shower, Shower, Toilet, Tub
  • Bathroom 4, Back House L1 – Shower, Toilet
  • Bathroom 5, Back House, L2 – Combination Tub/Shower, Shower, Toilet, Tub
  • Bathroom 6, Back House, L2 – Combination Tub/Shower, Shower, Toilet, Tub
Provided items in bathrooms:
Toilet paper: Ample supply of extra-soft toilet paper.
Fresh towels: Plush bath towels, hand towels, and washcloths for each guest.
Shower essentials: shampoo, conditioner, and body wash.
Hand soap: A nice quality hand soap by the sink.
Hair dryer: A wall-mounted or standard hairdryer.
Trash can: A wastebasket for easy disposal.
First-aid kit: Include basic supplies like bandages, antiseptic wipes, and pain relievers.
Makeup remover wipes: Perfect for removing makeup and preventing stains on towels.
Cotton swabs & cotton balls: Handy for various hygiene needs.
Tissues: A box of soft tissues.
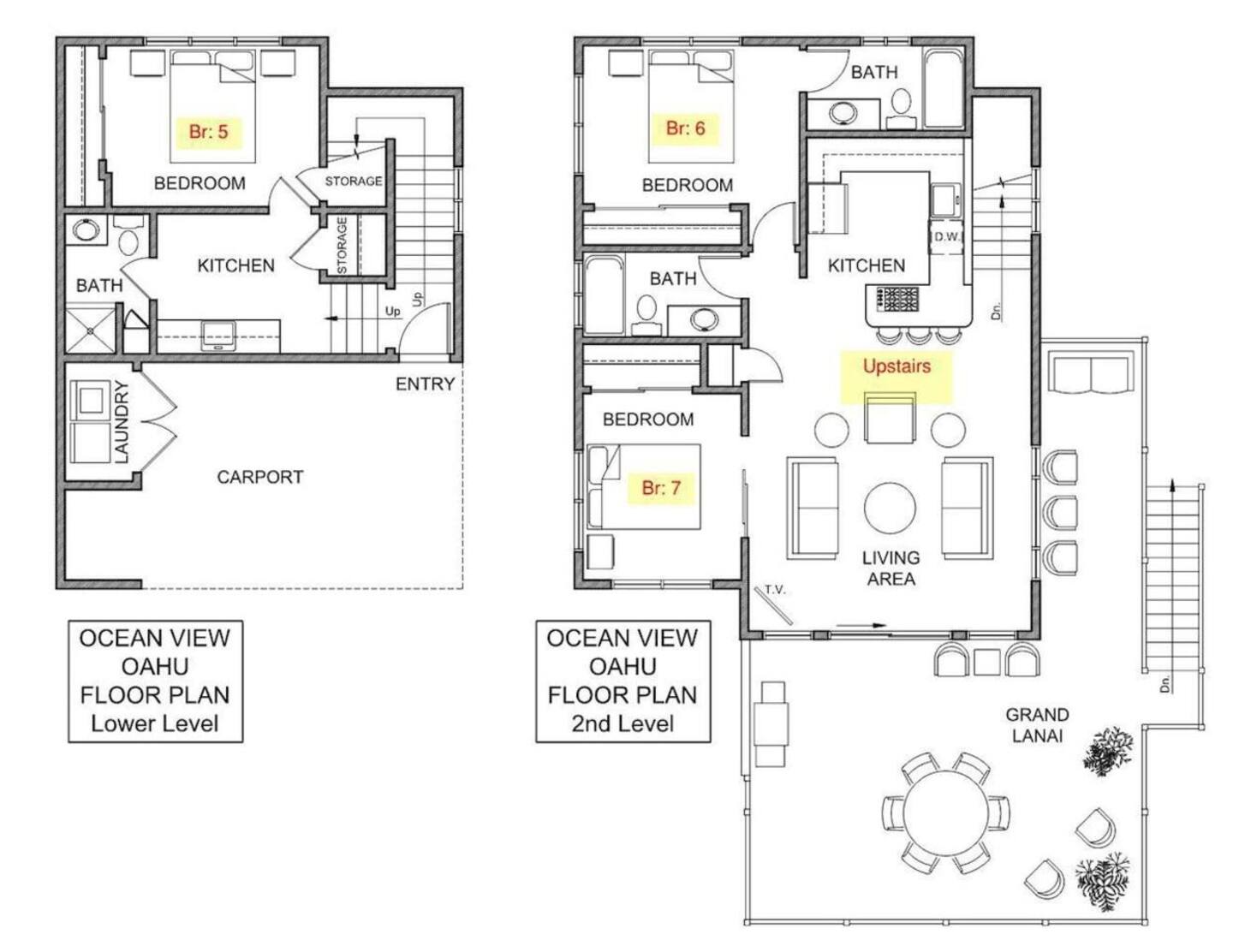
Sleeping Arrangements 7 Bedrooms, sleeps 16
  • Bedroom 1, Front House – 1 Queen bed
  • Bedroom 2, Front House – 1 Queen bed
  • Bedroom 3, Front House – 2 Queen beds
  • Bedroom 4, Front House – 1 Queen bed
  • Bedroom 5, Back House L1 – 1 Queen bed, 1 Twin bed
  • Bedroom 6, Back House, L2 – 1 Queen bed
  • Bedroom 7, Back House, L2 – 1 Queen bed
  • Living Room, Front House – 2 Cribs, 4 Couches, 2 Air Mattresses, 2 Floor Mattresses
  • Living Area, Back House L2 – 1 Crib, 1 Couch, 1 Air Mattress, 1 Floor Mattress
*Extras: Mention extras like robes, slippers, luggage racks, or a full-length mirror.
*Comfortable Twin/Queen/King-sized beds: Enjoy a restful night on our comfortable beds with fresh, high-quality linens.
*Room-darkening shades: Control the light in your room for optimal sleep conditions.
*Convenient bedside outlets: Easily charge your devices with conveniently placed outlets next to the bed.
*Spacious closets and dresser drawers: Store your clothes and belongings with ample closet space.
Entertainment
  • Television
  • Satellite/Cable
  • DVD Player
  • Video Library
  • Video Games
  • Stereo
  • Music Library
  • Games/Board Games
  • Books
  • Toys
  • Gym
  • Smart TV
  • Piano
  • Sound System
  • Exercise Equipment
  • Home Theater
Family
  • Baby Gate
  • Baby Bath
  • Baby Monitor
  • Babysitter Recommendations
  • Changing Table
  • Children's Dinnerware
  • Fireplace Guards
  • Outlet Covers
  • Pack N Play/Travel Crib
  • Room Darkening Shades
  • Table Corner Guards
  • Window Guards
  • Children's Books & Toys
  • Cabinet Locks
  • Childcare Available
Outdoor
  • Outdoor Grill
  • Deck/Patio (uncovered)
  • Lanai/Gazebo (covered)
  • Balcony/Terrace
  • Lawn/Garden
  • Bicycles
  • Kayak/Canoe
  • Water Sports Gear
  • Beach Essentials
  • Walkable to Park/Playground
  • Private Yard
  • Sunroof/Roof Terrace
  • Fire Pit
  • Fenced Yard
  • Play Area
  • Outdoor Dining
  • Outdoor Seating
  • Hammock
  • Playground
Pool/Spa
  • Communal Pool
  • Hot Tub
  • Jacuzzi
Vehicles
  • Parking
  • Garage
  • Free Parking
  • Street Parking
  • Free Parking On Premises
Other
  • Car Available
  • Chauffeur
  • Concierge
  • Massage
  • Private Chef
  • Staff
  • Luggage Dropoff Allowed
  • Cleaning Before Checkout
  • Breakfast Provided
Theme
  • Adventure
  • Family
  • Romantic
  • Tourist Attractions
Attractions
  • Coin Laundry
  • Duty Free Shops
  • Health/Beauty Spa
  • Marina
  • Museums
  • Theme Parks
  • Water Parks
  • Zoo
Leisure
  • Antiquing
  • Bird Watching
  • Eco Tourism
  • Gambling/Casinos
  • Horseback Riding
  • Outlet Shopping
  • Paddle Boating
  • Sledding
  • Whale Watching
  • Boating
  • Shopping
  • Wildlife Viewing
  • Water Sports
Sports & Adventure
  • Basketball Court
  • Cycling
  • Cross Country Skiing
  • Deepsea Fishing
  • Fishing
  • Bay/Sound Fishing
  • Fly Fishing
  • Freshwater Fishing
  • Surf Fishing
  • Golf
  • Golf Privileges Optional
  • Hiking
  • Hunting
  • Ice Skating
  • Jet Skiing
  • Kayaking
  • Mountain Biking
  • Mountain Climbing
  • Mountaineering
  • Parasailing
  • Pier Fishing
  • Rafting
  • Rock Climbing
  • Sailing
  • Scuba Diving/Snorkeling
  • Ski Lift Privileges
  • Ski Lift Privileges Optional
  • Skiing
  • Water Skiing
  • Snorkeling
  • Snorkeling/Diving
  • Snowboarding
  • Snowmobiling
  • Spelunking
  • Surfing
  • Swimming
  • Water Tubing
  • Whitewater Rafting
  • Wind Surfing
Safety
  • Carbon Monoxide Detector
  • Deadbolt Lock
  • Emergency Exit Route
  • Fire Emergency Contact
  • Fire Extinguisher
  • First Aid Kit
  • Medical Emergency Contact
  • Exterior Lighting
  • Police Emergency Contact
  • Smoke Detector
  • Enhanced Cleaning Practices
  • Cleaning Disinfection
  • Common Surface Disinfectant Cleaned
  • Linens High Temp Wash
  • Cleaning Products
Expectations
  • Requires Stairs
  • Pool/Jacuzzi With No Fence
  • Noise Monitor
Check Out Tasks
  • Turn Things Off
  • Throw Away Trash
  • Gather Towels
Accessibility
  • Path To Entrance Lit At Night